Construcción Modular
Modularhaus Mallorca
Niedrigenergiehaus Spanien
Schlüsselfertig Bauen Spanien
Hausbau Balearen Mallorca
MARBELLA
AcerOscuro Modulhaus
Camino del Higueral, 16
E-29679 Benahavís (Málaga)
Construcción Modular en Acero Casas Sostenibles
TURISMO MALLORCA
MALLORCA
AcerOscuro Modulhaus
Calle Traginers s/n (Pol. Industrial Lloseta)
E-07360 Lloseta (Mallorca)
Tel.: +34 605 29 71 80
Tel.: +34 620 00 16 42
info@aceroscuro.es
N.I.F: X3044134S / ESX3044134S

SCHLÜSSELFERTIG BAUEN
Projekterstellung, Gutachten, Architektendienstleistung, , Handling Baugenehmigung, Fundament…
IM KAUFPREIS INBEGRIFFEN!
Copyright AcerOscuro 2025 - Cookie Policy - Terms and Conditions
CARPORT für 2x PKW IM KAUFPREIS INBEGRIFFEN!
AUSSENPOOL (ebenerdig)
Ca. 6x4.8m / 12x 2.4m
+ 25.000 Euros
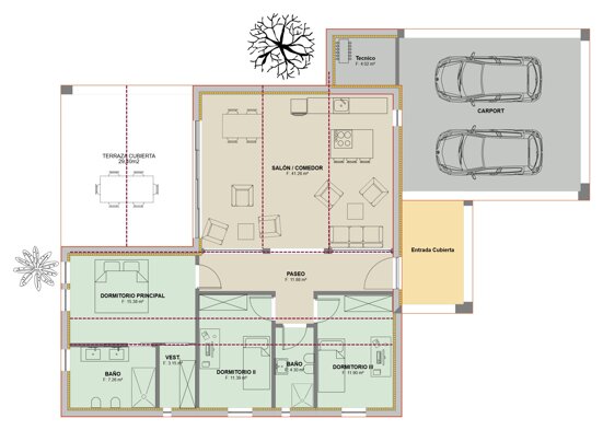
Hausmodell
ANCLA MALLORQUIN
ab 431.100 Euros
app. 211m2 / app. 134m2 Haus / Carport / 3x Schlafzimmer



.jpeg)

Bungalow in einem modernen mediterranen Stil, überdachte Terrasse (Veranda), Abstellraum, Hauptschlafzimmer-en Suite mit Ankleidezimmer, helle Räume, CARPORT für 2x PKWs…
„Passiv“-Haus mit hinterlüfteter Fassade, Zwangsbelüftung mit Wärmerückgewinnung, AEROTHERMIE für Warmwasser, Heizung & Klimaanlage, Fußboden-/Deckenheizung, Panoramafenster mit elektrischen Schiebeläden, Designerbäder, Laminatböden...
PREIS: 431.100 Euro zzgl. MwSt. (10 %) - OHNE GRUNDSTÜCK!
Inbegriffen: CARPORT, Projekte, Architekten, Studien, Beantragung und Abwicklung der Baugenehmigung, Fundament (bei flachem Bauland), Transport und Montage
Gesamtkonstruktion: ca. 211m2
HAUS: ca. 134m2
Nutzfläche HAUS: ca. 110m2
Carport: ca. 39m2
Überdachte Terrasse: ca. 28m2
Überdachter Eingang: ca. 10m2
Schlafzimmer: 3 Badezimmer: 2
zusätzliche WPC-Terrassen: gegen Aufpreis!






Responsable: AcerOscuro Modulhaus / Stefan Hubert Krause X3044134S
Finalidad: Obtención de tu consentimiento para responder a las cuestiones que nos planteas a través de nuestro formulario de contacto.
Legitimación: Consentimiento del interesado.
Destinatarios: No se cederán datos a terceros, salvo obligación legal.
Derechos: Acceder, rectificar y suprimir los datos, así como otros derechos, como se explica en la información adicional.
Información adicional: Puedes consultar la información adicional y detallada sobre Protección de Datos en el siguiente enlace: https://www.aceroscuro.es/protecciondatos.html